-
楼盘资讯中梁·知贤悦庭2023年12月底新品发布,丰富户型全面升级! 2022-05-22
中梁·知贤悦庭于2023年12月底推出全新房源,特此发布重要动态!在售户型包括了从102平方米到125平方米的三居至四居住宅,满足不同家庭的居住需求。项目以小高层与高层建筑为主,精......
-
楼盘资讯中梁·知贤悦庭住宅项目概览 2022-05-07
中梁·知贤悦庭,作为一处精心规划的住宅项目,提供多样化的户型选择,满足不同家庭的需求。目前在售的户型包括102平方米至125平方米的三居室至四居室,空间布局合理,功能分区明确。项目......
-
楼盘动态中梁·知贤悦庭项目详情揭秘 2022-04-22
中梁·知贤悦庭,位于震泽镇双阳路168号,是一个集小高层与高层于一体的高品质住宅项目。项目以低容积率1.8为特色,确保了居住环境的舒适与私密性。毛坯交付的设计,为业主提供了自由装修......
-
楼盘动态中梁·知贤悦庭:高品质住宅新选择 2022-03-23
中梁·知贤悦庭,以卓越的品质和优越的地理位置,成为您理想居所的新选择。项目物业费为2.2元/平方米·月,确保您的居住环境既舒适又安心。作为小高层和高层建筑的完美结合,中梁·知贤悦庭......
-
楼盘资讯中梁·知贤悦庭最新动态:品质生活新选择 2022-03-08
中梁·知贤悦庭,以毛坯交付,为追求个性与自由的您提供无限想象空间。物业费标准为2.2元/平方米·月,确保您的居住环境始终如一的舒适与便捷。项目精心规划了1013户住宅,预计于202......
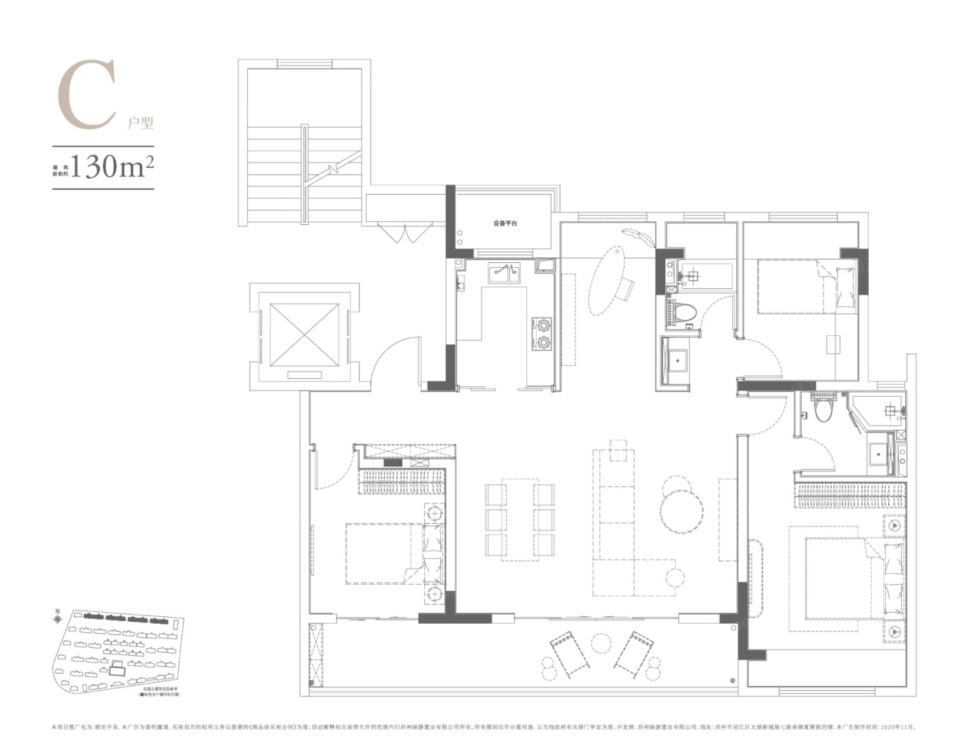
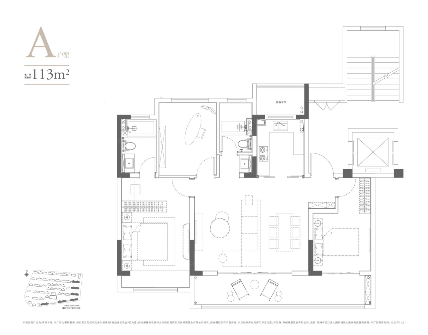
3室2厅
3室2厅
4室2厅
3室2厅
4室2厅
4室2厅
- 苏州梁悦房地产开发有限公司
- 70年
- 84000
- 196000
- 30%
- 1.80
- 暂无信息
- 1013
- 住宅2.2元/㎡/月
- 中梁物业
- 毛坯
消息通知(您的信息将严格加密)
中梁·知贤悦庭 在售
11700 元/㎡
微信扫码拨号








